Enjoying a pleasant position, close to the edge of this popular village lies this impressive stone end terraced house. It offers well presented accommodation which has been much improved in recent times including the conversion of the garage into a multi-use living room. It comprises: entrance porch, wc, lounge, dining kitchen, rear hall, living / games room, utility, landing, 4 bedrooms, bathroom and en-suite. It has the benefit of wooden framed double glazing, gas central heating and modern fittings throughout. Externally, there are low maintenance gardens featuring raised beds to the front and an enclosed garden at the rear with timber decking and a gravelled driveway. Internal viewing is essential.
Overview
Property Details
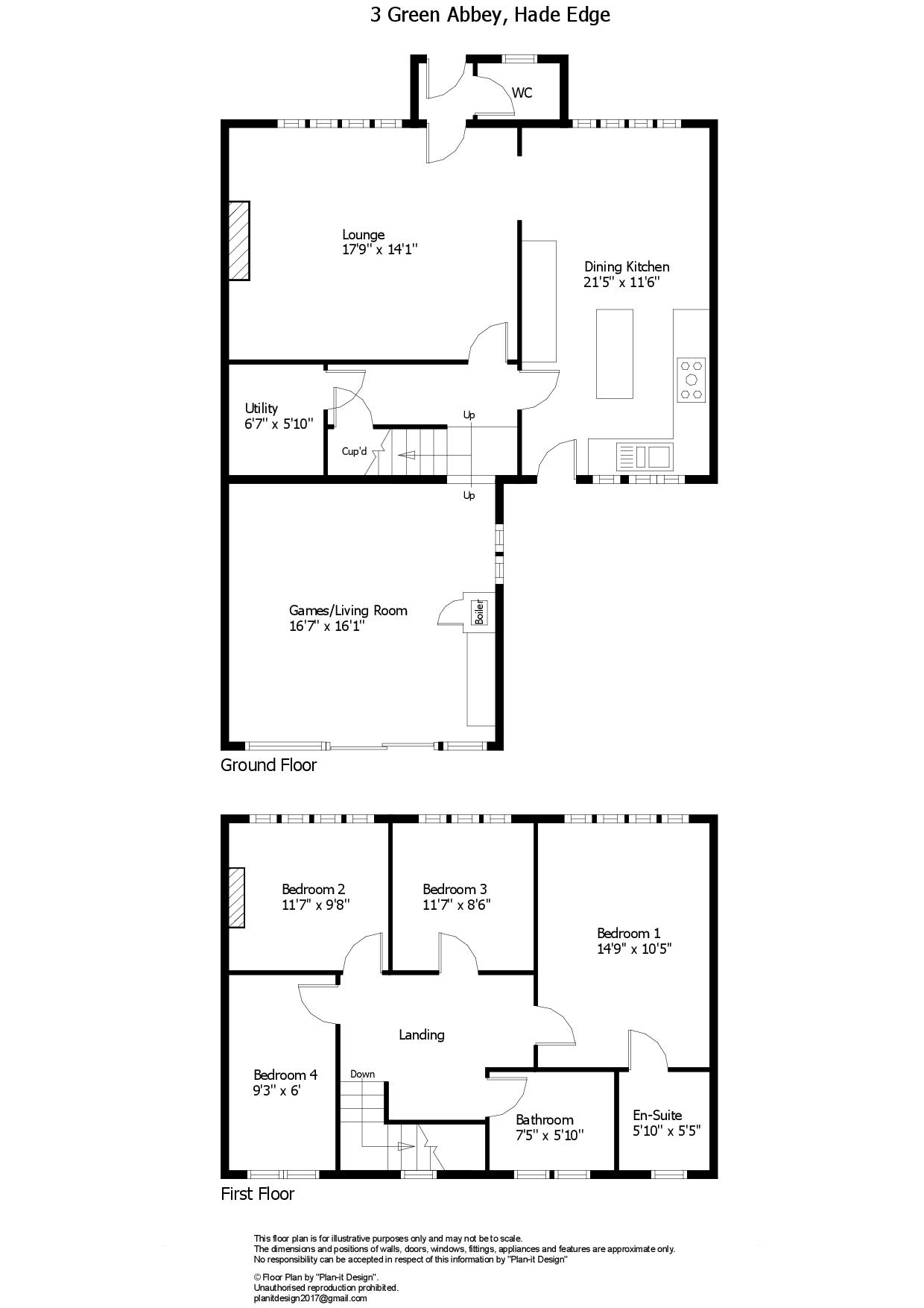
Accommodation
GROUND FLOOR
Entrance Porch
With wooden entrance door to the front, tiled floor and central heating radiator.
Downstairs WC
With low flush wc, wall hung washbasin, tiled floor and window to the front.
Lounge 5.4m x 4.3m
A good sized living room with windows to the front, chimney breast with stone fireplace with gas fired stove and timber lintel, central heating radiator.
Hall
With staircase to the first floor and central heating radiator.
Utility 2m x 1.78m
With fitted base units, wooden worksurface, plumbing for washing machine and extractor.
Dining Kitchen 6.53m x 3.5m
Fitted with a good range of shaker style base units and wall cupboards with laminated worksurfaces, island unit and a bank of larder units, integrated fridge freezer, dishwasher, 1 ½ bowl stainless steel sink unit with mixer tap, free standing Belling range style cooker with 5 ring gas hob and extractor over, windows to the front and rear, rear entrance door and central heating radiator.
Games / Living Room 5.05m x 4.9m
A large multi purpose room with a bank of full height glazing along the rear incorporating sliding double doors to the garden, further window to the side, cupboard housing the central heating boiler, bench seating with shoe storage and coat hooks, inset spotlights to the ceiling, central heating radiator.
FIRST FLOOR
Landing
A spacious landing area with porthole window to the rear, central heating radiator and balustrade around the stairs.
Bedroom 1 4.5m x 3.18m
A good sized double bedroom with windows to the front, panelling to one wall and central heating radiator.
En-Suite 1.78m x 1.65m
With modern suite in white comprising low flush wc, wall hung vanity washbasin and shower enclosure, fully tiled walls, tiled floor, heated towel rail, obscure glazed window to the rear and extractor.
Bedroom 2 3.53m x 2.95m
A double bedroom with windows to the front and central heating radiator.
Bedroom 3 3.53m x 2.6m
A smaller double bedroom with windows to the front and central heating radiator.
Bedroom 4 2.82m x 1.83m
A single bedroom, currently used as a study with window to the rear and central heating radiator.
Bathroom 2.26m x 1.78m
With modern suite in white comprising low flush wc, wall hung washbasin and bath with tiled surround, fully tiled walls, obscure glazed window to the rear, inset spotlights to the ceiling, extractor and heated towel rail.
OUTSIDE
To the front of the house there is a garden area with raised beds and gravelled paths enclosed by a stone wall.
Rear Garden
To the rear of the house there is a pleasant enclosed garden which is designed to be low maintenance with gravel, timber decked seating area with planted borders. A gravelled parking area sits alongside this. There is also a wooden storage shed and a further sitting area off the kitchen, directly at the rear of the house.
Additional Information
The property is Freehold, Energy rating 67 (Band D), Council tax band D.
Our online checks show that Fibre to the Cabinet (FTTC) broadband is available and mobile coverage is predicted to be good outdoors.
Viewing
By appointment with Wm Sykes & Son.
Location
From the centre of Holmfirth take the B6106 Dunford Road up to Hade Edge. The road splits at the Boshaw Trout Pub and Restaurant, bear right here and continue along Dunford Road almost to the edge of the village. Green Abbey is on the right hand side and the property will be found along a short driveway on the left, with frontage to Dunford Road.



































































