An impressive grade II listed detached cottage which enjoys a pleasant position in the heart of this sought after village close to all the local amenities and also in easy reach of picturesque countryside. It offers spacious, 4-bedroom accommodation, large dining kitchen, two reception rooms, ensuite to master and large house bathroom and much more. The property boasts period features and the property sits within walled boundaries and there are gardens to the front, side and rear all offering a high degree of privacy with varying seating areas and established planting. Cherry Cottage boasts a generous driveway behind high electric gates offering parking for a number of vehicles (suitable for those with a caravan) and a former coach house with an upper level, timber panelling and stone set floor. Internal inspection is a must.
Overview
Property Details
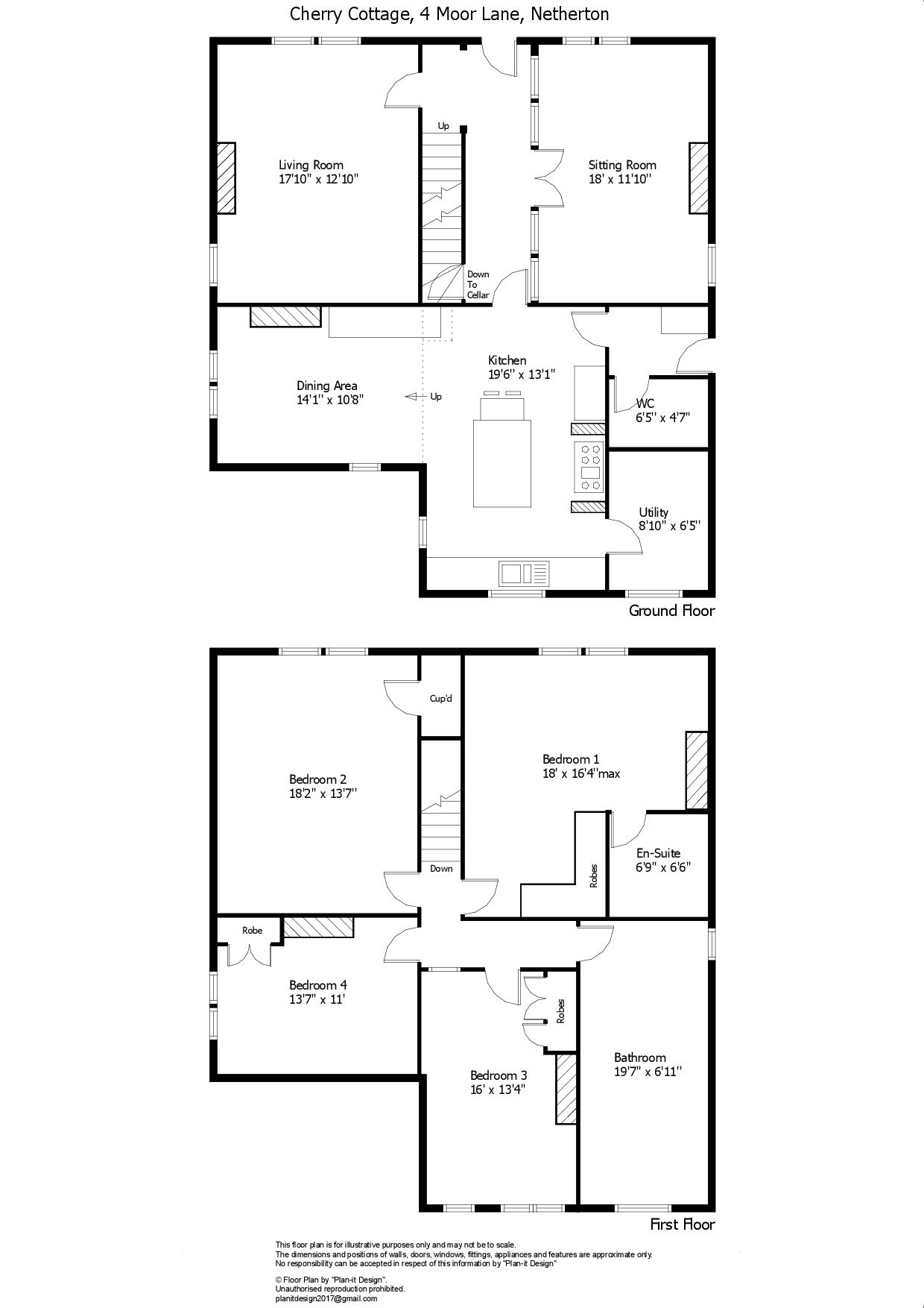
Accommodation
GROUND FLOOR
Entrance Hall
A timber and glazed door provides access into the front entrance hall which has a wonderful Minton tiled floor stretching through to the kitchen. It also features a staircase to the first floor, coved ceiling and archway, inset spotlights to the ceiling, central heating radiator and a glazed wall to the snug. A door and stairs lead down to the cellar.
Sitting Room 5.44m x 3.9m
A generous living room with windows to the front and side enjoying dual aspect natural light. There is period style coved ceiling, chimney breast with feature fireplace surround and recently fitted multi fuel burning stove with exposed stonework to the rear set upon a raised granite heart, central heating radiator.
Snug 5.49m x 3.6m
As described earlier, this inviting room features a glazed wall to the hallway with centrally positioned glazed double doors providing access. It features a chimney breast with marble fireplace surround and home to a recently fitted multi fuel burning stove set upon a raised tiled heather with exposed stonework to the rear. There are also windows to the front and side, coved ceiling and 2 central heating radiators.
Utility Room 2.7m x 1.96m
Located off the kitchen and featuring further fitted units, central heating boiler (fitted in 2025), plumbing for automatic washing machine and window to the rear.
Side Entrance Hall 2.08m x 1.42m
Providing generous storage for shoes and coats in the built in storage cupboards that match the kitchen units and featuring a side entrance door.
Downstairs W.C. 2.08m x 1.4m
Featuring a low flush w.c., vanity basin with storage beneath, partly tiled walls, extractor to the ceiling and inset spotlights to the ceiling. The floor is tiled.
Cellar 4.06m x 3.07m overall
Accessed via a set of stone stairs from the hall, with vaulted ceiling and stone table and inset storage.
Kitchen 5.94m x 4m
The kitchen is of a good size and fitted with a range of bespoke solid wooden units with oak fronts, stainless steel 1 ½ bowl sink unit with mixer tap, integrated housing for microwave, Fisher and Paykel two drawer dishwasher, Miele coffee machine, freestanding fridge freezer (with units built in around) , range style cooker with tiled backcloth and sides and a filtration hood over. There is a matching high level island unit providing generous storage with granite top and an overhanging wooden breakfast bar. It also has a tiled floor, windows to the side and rear and a central heating radiator.
The fridge/freezer & range cooker may be available by sperate negotiation.
Dining Room 4.3m x 3.25m
The dining room is open plan to the kitchen and again features a tiled floor, windows to the side and rear and central heating radiator. The overall dining kitchen space offers a great entertainment space.
FIRST FLOOR
Landing
Stairs lead to the first-floor landing which is L-shaped and enjoys borrowed light from the arched window into bedroom 3 and a central heating radiator. There are inset spotlights.
Bedroom 1 5.05m x 5.49m (max inc wardrobes & en suite)
The largest bedroom features bespoke recently fitted wardrobes (2023). With one wall having matching panelling. There is a window to the front offering a front garden outlook, chimney breast with feature fireplace surround, cast iron and tiled interior.
En Suite 2.06m x 1.98m
The ensuite was fitted in 2023 and features herringbone period green tiling and a walk-in glazed shower, W.C. and vanity hand wash basin, inset spots, extractor fan and a Victorian period style radiator. The floor is also tiled.
Bedroom 2 5.54m x 4.01m
Another large double bedroom with window to the front and a large, recessed cupboard over the stairs with loft access point and central heating radiator. The outlook is across the front garden and far reaching views to the south.
Bedroom 3 4.88m x 4.06m
Another double bedroom with window and feature arched window to the rear offering views over the rear garden. The chimney breast with cast iron fireplace and wooden surround, built in cupboards to one side and central heating radiator.
Bedroom 4 4.14m x 3.35m
Again, a double bedroom with window to the side, chimney breast with cupboards to one side and central heating radiator.
Bathroom 5.97m x 2.1m
The bathroom is of a particularly good size and features a large walk in shower enclosure, bath with mixer rinse tap, wall hung washbasin and w.c., obscure glazed windows to the side and rear, inset spotlights to the ceiling, extractor and heated towel rail.
OUTSIDE
To the front of the house there is a pleasant garden area enclosed by a stone wall and fencing over, this features a path leading to the front door, paved seating area in front of the house and lawn wrapping around the side of the building. The side garden is not just striking but particularly private with a paved seating area, stone wall with railings and a wrought iron gate to the rear.
To the side of the house by the side door there is a useful outside store attached to the side of the house where the new gas meter is housed (fitted 2025) and used for log and solid fuel storage.
Rear Garden
The rear garden offers generous and established planting in various beds, high walls and the stone wall continues on the road side with fencing above. There are two lawned areas, slated seating area and a generous tarmac parking area which can offer off road parking for a number of vehicles. Potential buyers may consider the space suitable for motorhome and caravan storge as well as parking. The rear garden and drive all sit behind a high large electric gate (fitted 2022) with side personnel gate. To the rear there is a stone building that is reported to be the former coach house for the property. It offers some period features and an upper level. With a garage door to the front and side access as well the former coach house offers a great work/hobby space. New owners may consider various further options for this building (16' x 12'). There is an EV charging point.
Additional Information
The property is Freehold. Grade II listed and is situated in a conservation area– EPC exempt. Council tax band G.
The property is alarmed. The alarm control system was replaced in 2023. Also, Cherry Cottage has external CCTV with 4 cameras. The current owners updated the system with new cameras in 2023.
Some items of furniture are available for sale if potential buyers are interested.
Our onlien checks show that Full Fibre Broadband is available and mobile coverage varied dependent on the supplier.
Please Note
In keeping with good Estate Agency practice we inform all interested parties that one of the beneficiaries of this sale is an employee of Wm Sykes & Son.
Viewing
By appointment with Wm Sykes & Son.
Location
Follow the B6108 Meltham Road into the centre of Netherton, then turn onto Moor Lane. The property will be found on the right-hand side at corner with Netherton Fold.

















































































