This impressive 3 storey former weavers cottage offers spacious well presented accommodation combining exposed beams and stonework with modern fittings. The property is grade II listed and sits within the conservation area, close to the village centre of Honley and its many amenities. The accommodation comprises: entrance hall, lounge, dining kitchen, 2 first floor bedrooms, shower room and a huge bedroom (24’4” x 15’11”) spanning the entire top floor of the building. It offers great flexibility to be adapted for uses in other configurations if required. There are wooden framed double glazed windows, gas central heating and quality modern fittings alongside the traditional features. Externally there are easily maintained garden / sitting areas to the front and rear.
Overview
Property Details
Accommodation
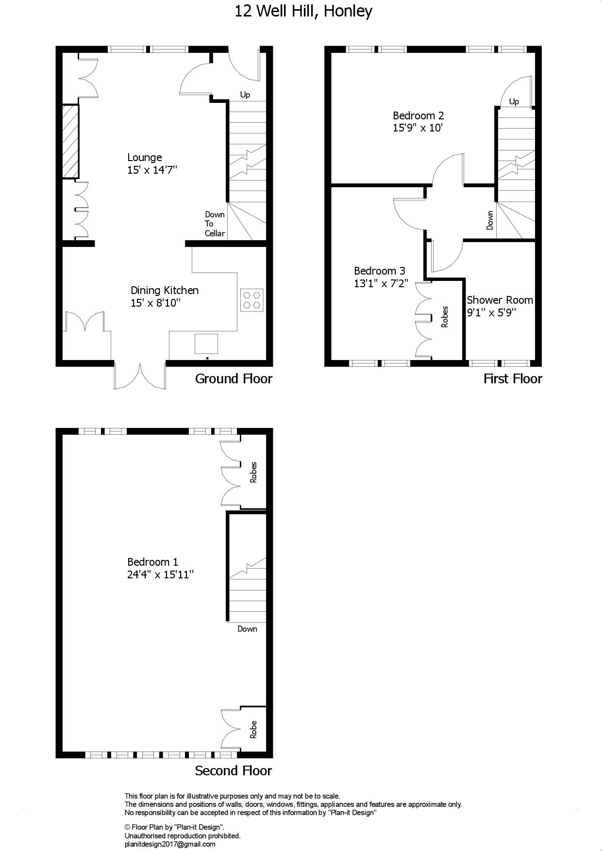
GROUND FLOOR
Entrance Hall
With wooden entrance door to the front, staircase to the first floor and central heating radiator.
Lounge 4.45m x 3.84m
A good sized living room with mullioned windows to the front, chimney breast with stone fireplace and timber lintel, log burning stove and built in cupboard to one side, beams to the ceiling, stone floor and central heating radiator. A door gives access to the cellar stairs and the room is partially open plan to the Dining Kitchen.
Dining Kitchen 4.57m x 2.7m
Fitted with a good range of base units and wall cupboards with granite worksurfaces, oven, electric hob with extractor over, fridge freezer, tiled splashbacks, built in additional storage cupboard housing the central heating boiler, laminated flooring, central heating radiator and an oversized window opening to the rear garden.
Cellar
With vaulted ceiling, stone flagged floor, electric light and power supply.
FIRST FLOOR
Landing
Stairs provide access to the first floor landing with exposed stonework to the wall.
Bedroom 2 4.8m x 3.05m overall
A double bedroom with 2 sets of mullioned windows to the front enjoying the views, laminated flooring, central heating radiator, door and staircase to the second floor enjoying the views.
Bedroom 3 4m x 2.18m
Another double bedroom with mullioned windows to the rear, partly panelled walls, bank of recessed 4 door wardrobes and central heating radiator.
Shower Room 2.77m x 1.75m (2.51m max)
A good sized shower room which features a walk in shower enclosure with Crittall style glazed screen, overhead and rinse showers, rustic style vanity unit with wash basin mounted on top, partly tiled walls, obscure glazed window to the rear and with exposed mullion, beam to the ceiling and combined heated towel rail and column radiator.
SECOND FLOOR
Bedroom 1 7.42m x 4.85m
This huge room spans the whole depth of the property – it is currently used by our clients as the principal bedroom but could alternatively be utilised as an other living room or studio depending upon the needs of the next owner. It features mullioned windows to the front and rear elevations, exposed beams to the high angled ceiling, wooden floorboards, built in storage cupboards and 2 central heating radiators.
OUTSIDE
To the front of the house there is an enclosed sitting area with stone wall, wooden fence and gate.
Rear Garden
To the rear of the house is a further low maintenance seating area.
Parking
There is no immediate parking with the property, unallocated on street parking is located on the nearby Thirstin Road.
Additional Information
The property is Freehold, EPC exempt, Council tax band C.
Our online checks show that Ultrafast Fibre (FTTP) broadband is available and mobile coverage is predicted to be good outdoors.
Viewing
By appointment with Wm Sykes & Son.
Location
Follow Westgate through the centre of Honley to the mini roundabout. Turn right onto Thirstin Road. Well Hill will be found on the left and is accessible on foot.





















































