This spacious semi-detached home has been extensively extended to the side and rear to provide superb family sized accommodation which must be viewed to be fully appreciated. It comprises: entrance porch, hall, lounge, dining / sitting room, dining kitchen, office, landing, 5 bedrooms, bathroom and en-suite. The property has the benefit of a gas central heating system and uPVC double glazing but we anticipate that buyers may look to carry out further improvements to their own tastes. Externally there is a garden / sitting area to the front along with a driveway / parking space. To the rear there is a generous enclosed garden with lawn and paved seating areas. Internal viewing is essential.
Overview
Property Details
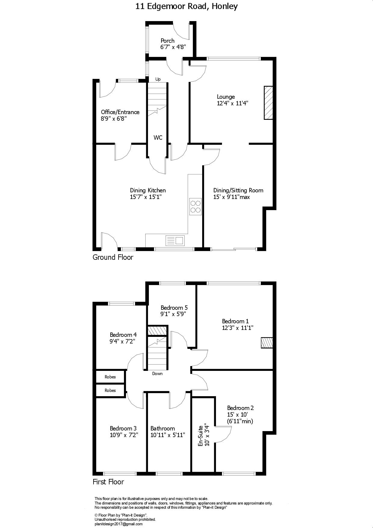
Accommodation
GROUND FLOOR
Entrance Porch
With uPVC entrance door, window to the side, tiled floor and central heating radiator.
Hall
Featuring a staircase to the first floor with wrought iron balustrade, window to the side and central heating radiator
Dining Kitchen 4.75m x 4.6m
The kitchen is of excellent proportions and is fitted with a good range of base units and wall cupboards with laminated worksurfaces, stainless steel sink with mixer tap, plumbing for automatic washing machine and dishwasher, 2 windows and door to the rear garden, laminated wood flooring and central heating radiator.
Dining / Sitting 4.57m x 3.02m (2.57m min)
A flexible room which is currently used as a music room / sitting room. With full height window and glazed sliding door to the rear, central heating radiator. An open archway leads through to the lounge.
Office 2.44m x 2.03m
With window and door to the front, wood flooring, central heating radiator and cupboard housing the central heating boiler.
Lounge 3.76m x 3.63m
With window to the front, chimney breast with multi-fuel stove, central heating radiator.
FIRST FLOOR
Landing
With wrought iron balustrade and wooden hand rail, loft access and central heating radiator.
Bedroom 1 3.73m x 3.38m
A double bedroom with window to the front and central heating radiator.
Bedroom 2 4.57m x 3.05m (2.1m min)
A double bedroom with window to the rear enjoying the views and central heating radiator.
En-suite 3.05m x 1.98m
With three piece suite in white comprising low flush wc, hand washbasin and shower cubicle, partly tiled walls and central heating radiator.
Bedroom 3 3.28m x 2.18m
With window to the rear, built in wardrobes and drawers, central heating radiator.
Bedroom 4 2.84m x 2.18m
With window to the front, built in wardrobes and drawers, central heating radiator.
Bedroom 5 2.77m x 2.06m
With window to the front and central heating radiator. Note: measurement includes staircase bulkhead.
Bathroom 3.33m x 1.8m
With 4 piece suite in white comprising low flush wc, pedestal washbasin, bath and shower cubicle, partly tiled walls, obscure glazed window to the rear and central heating radiator.
OUTSIDE
To the front of the house there is a concrete driveway / parking area for 1 car and a paved seating area. To the rear there is a pleasant enclosed garden which features a paved seating area and timber garden shed.
Additional Information
The property is Freehold, Energy rating 72 (Band C), Council tax band C.
Our online checks show that Full Fibre Broadband is available and mobile coverage is good outdoors, variable in-home.
Viewing
By appointment with Wm Sykes & Son.
Location
Head through the centre of Honley on Westgate, then bear left at the roundabout at Moorbottom turning onto Meltham Road. Edgemoor Road will be found on the left hand side.























































