A rare opportunity to purchase a generous proportioned family home which sits on the much-admired Rectory Close in the ever-popular village of Marsden with its many and varied amenities, train station and a highly commutable location. The property offers spacious accommodation that briefly comprises: entrance hallway, study/playroom/bedroom 5, ground floor WC, dining kitchen, lounge with dining area, side entrance vestibule, utility and conservatory and to the first floor there are four bedrooms, ensuite and bathroom. The property sits on a generous plot with lawned gardens, parking, double garage and further gardens currently used for a greenhouse and planters. This property must be viewed to be fully appreciated.
Overview
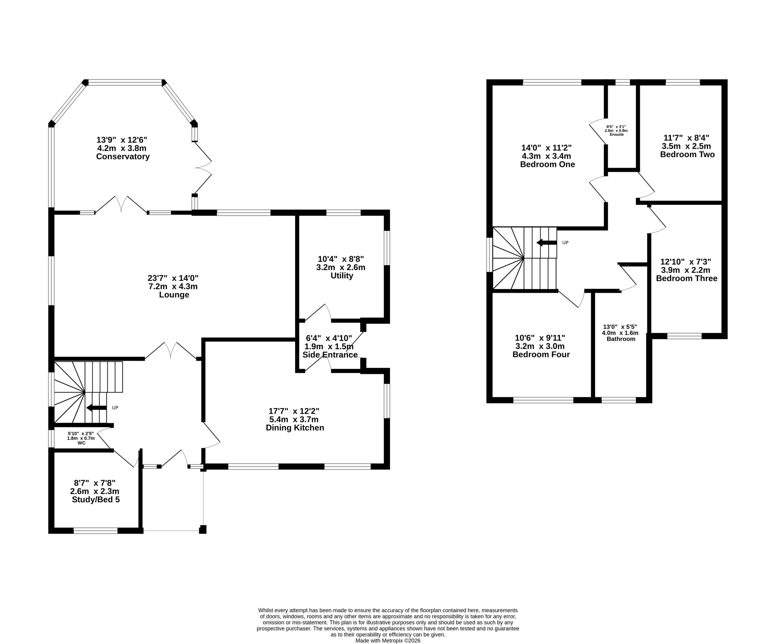
Property Details
Accommodation
GROUND FLOOR
Entrance Hallway
This particularly appealing space has a timber flooring, a staircase rises to the first-floor landing with a window and half landing height. There is a central heating radiator and doors lead off the entrance hall is accessed via a double-glazed door with side windows.
Lounge 7.2m x 4.27m max
This particularly good size room offers dining and lounge options or simply a large lounge. There is an electric fire set within a period style surround. The room has two central heating radiators, double-glazed windows to the side and rear aspect and inset spotlights to the ceiling. From the lounge courtesy of glazed French doors which has windows to each side access is given through to the conservatory.
Conservatory/Sun Lounge 4.2m x 3.8m max
The sun lounge has a central heating radiator, predominantly glazing to three sides allowing a pleasant rear aspect and access via French doors can be gained to the property’s rear garden.
Study/Playroom/Bedroom 5 2.62m x 2.34m
This room potentially offers a variety of uses as an additional bedroom or TV room, snug or as currently use as a study. The room has double-glazed window and a central heating radiator. The timber flooring continues from the entrance hallway.
Ground Floor W.C. 1.78m x 0.74m
Comprising of a two-piece suite including a small hand wash basin and low-level flush WC, tiling is to half height, there are inset spotlights to the ceiling and an obscure glazed window.
Dining Kitchen 5.36m x 3.7m max
The dining kitchen comprises of units to the high and low level, there is a one and half bowl stainless steel sinking unit with a mixer tap over, there is an integral dishwasher and fridge and a freestanding range master stove which is gas fired and is included in the sale and above there is a matching range master filtration hood. There are appropriate tiled splashback, and the room benefits from three double-glazed windows with front and side aspect. There is a central heating radiator, inset spotlights to the ceiling, some exposed stone and brickwork and a door gives access through to the property’s side entrance vestibule.
Side Entrance Vestibule
Here there is a small loft access point, a double-glazed external access door, central heating radiator and access can be going through to the utility.
Utility Room 3.15m x 2.64m
The utility has units to the low level with a one and a half bowl stainless steel sink unit with mixer tap over, there is plumbing for an automatic washing machine, double-glazed windows with a side and rear aspect, the room is home to the property’s gas fired central heating boiler and the water tank in addition.
FIRST FLOOR
Landing
The landing has a stained-glass effect double-glazed window at half landing height. There is a storage cupboard and doors leave off. The landing is home to the property’s loft access point.
Bedroom 1 4.27m x 3.4m max
Located to the rear of the property and enjoying views over Marsden, the bedroom has double glazed windows, a bank of built in wardrobes and a central heating radiator.
En Suite 2.57m x 0.94m max
Comprising of a three-piece suite in white including a hand wash basin, low-level flush WC and shower cubicle. The room is tiled to ceiling height has a tiled floor and an extractor fan. There are inset spotlights to the ceiling and a double-glazed window.
Bedroom 2 3.53m x 2.54m
Again, located at the rear with appealing views courtesy of the double-glazed window over the property’s rear garden and beyond and there is a central heating radiator.
Bedroom 3 3.9m x 2.2m
The bedroom is located to the front of the property with the double-glazed window allowing views to the property’s front garden and beyond and there is a central heating radiator.
Bedroom 4 3.2m x 3.02m
Another good-sized bedroom where the window offers views similar to that of bedroom three and there is a central heating radiator.
House Bathroom 3.96m x 1.65m max
Comprising of a four-piece suite in white including vanity hand wash basin, low-level flush WC, freestanding bath with shower attachment over and a glazed shower cubicle. The bathroom is tiled in the main to ceiling height, has a tiled floor, central heating radiator and an obscure double-glazed window.
OUTSIDE
The property sits within a select cul-de-sac of just four properties and as you enter the cul-de-sac the number one’s garden starts immediately on the left and the lawn runs down to the side of the stone set driveway. To the left-hand side of the garage there is a further garden/allotment area which is clearly defined by the stone boundary walls. Here there is a greenhouse and some established planting and raised planters. The garage has an electric up and over door and in the garage there is power and lighting. Also, there is a side entrance door and sealed unit double glazed windows to the side. To the opposite side of the garage there is a large paved area suitable for the parking of additional vehicles or simply a good-sized raised patio area. The paving continues to the front of the property which is shown by the outside seating placed by the current owner. The pathway continues to the side of the property where there are additional lawns and an established tree with swing and then a small drop down to the larger lawn rear garden. Directly at the back of the property there is a paved patio area and four steps drop down to the property’s rear garden there is established planting and an outside tap.
Viewing
By appointment with Wm Sykes & Son.
Location
From Marsden village centre and on Peel Street turn left onto Station Road and follow the road up towards the train station. Rectory Close is on the left and no. 1 is the first house on the left.
Additional Information
- Council Tax – Band F
- Tenure – Freehold
- Energy Rating 69 (Band C)
- Utilities:- o Water – mains o Electricity – mains o Drainage – mains o Gas – mains o Heating – gas fired central heating system o Broadband & Mobile Phone – The ‘Ofcom’ on-line checker shows a range of broadband services, including ‘Ultrafast Fibre Broadband’ (Fibre to Premises FTTP), are available in this area and mobile coverage at the property is offered by several providers.























































