RESERVE YOUR NEW HOME NOW
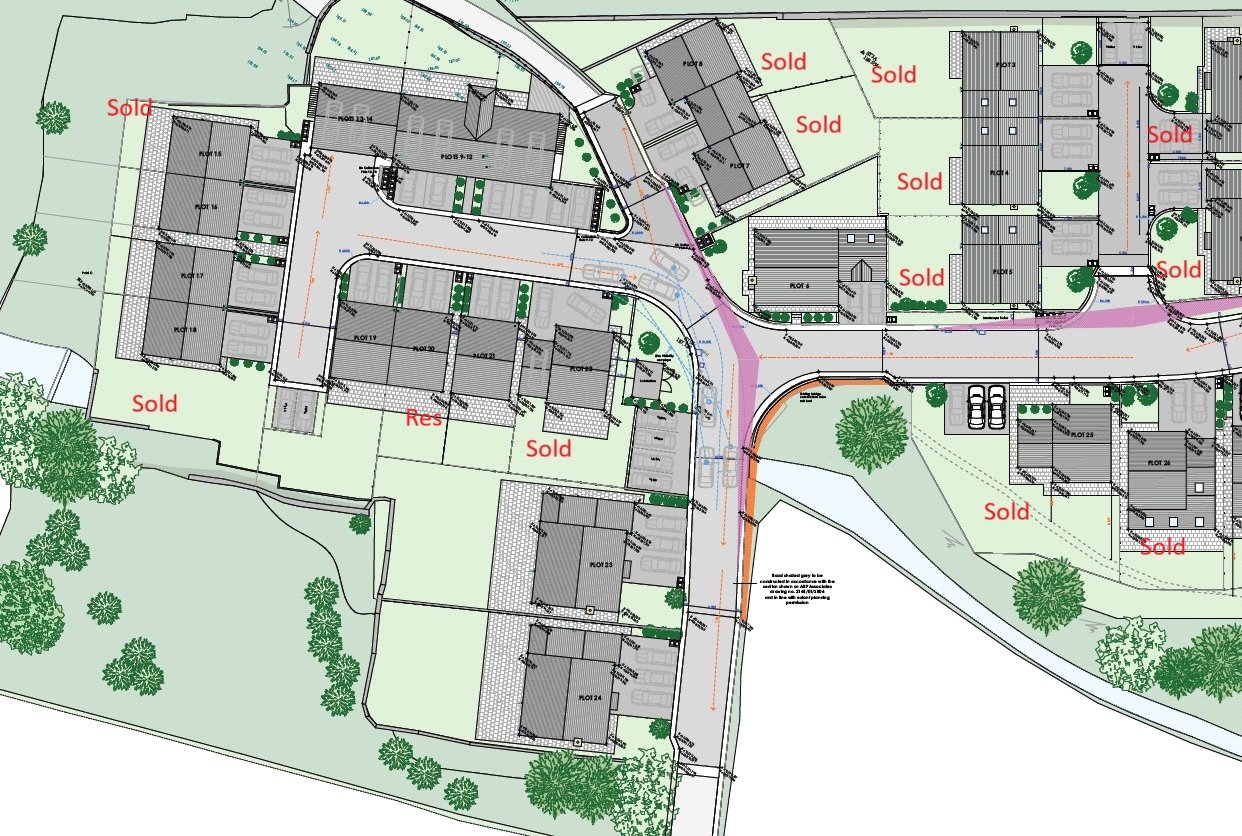
Phase 3 of this this superb new development is now approaching completion and we are delighted to be able to offer the remaining plots for sale. Buyers who reserve at this stage will have the opportunity to chose kitchen and bathroom fittings and customise the finish to their tastes. There are 6 semi-detached properties in all, each offering a generous 1100 sqft of accommodation. This comprises: entrance hall, lounge, dining kitchen, downstairs wc, landing, 3 bedrooms, bathroom and en-suite. It will have a gas central heating system, photovoltaic solar panels, uPVC double glazing and high quality fittings throughout. Externally, there are 2 parking spaces to the front and a pleasant enclosed garden to the rear.
Overview
Property Details
About Royd Edge Mill
The site was originally developed in the 1830’s as a mill, drawing upon water from Royd Edge Moor from Thick Hollins Dyke. After falling into disrepair and eventual demolition the site is now to be redeveloped for 30 thoughtfully designed new homes. These range from 2 bedroom apartments to 5 bedroom detached houses and will appeal to a range of buyers from young families to downsizers.
Each property will be built in natural stone and completed to high standard. Your purchase will come backed with the security of a 10 year structural warranty by Build Zone. They will feature quality fittings throughout. Our kitchens are supplied by local manufacturer and buyers will be able to choose their finish from a specially selected range.
The site sits in a pleasant setting, accessed off Holmfirth Road down Royd Edge Road and adjoins delightful open countryside on the edge of the Peak District National Park. Carry on along Royd Edge Road and there are wonderful countryside walks to be enjoyed. Also in walking distance you will find Meltham village centre which has a number of independent shops, pubs, restaurants and even its own Brewery Taphouse. Meltham also has a Morrisons supermarket, 2 schools and falls within the catchment area of Honley High School.
Further amenities can also be found in the villages of Holmfirth, Honley and Slaithwaite which are all a short distance away. Slaithwaite (and Marsden, the next stop along the line) have their own railway stations which offer good access links to Manchester and Leeds city centres. Huddersfield is the closest major town, located approximately 7 miles away.
SPECIFICATIONS
External Build
- Coursed and tumbled natural stone outer leaf with ashlar details.
- Rivius antique style roof slates.
- Composite entrance doors in Agate grey.
- uPVC double glazed windows in Agate grey (white interiors).
- Patio doors in aluminium.
- Aluminium gutters and uPVC rainwater pipes.
Internal Finish
- Painted spindle balustrading with wooden handrails or wooden handrails with glass panels.
- Painted skirting boards and architraves.
- Off white emulsion to the walls.
- Purchasers’ choice from a range of tiling to the bathrooms.
- Purchasers’ choice from a range of LVT flooring to the hall, wc and kitchen.
- Purchasers’ choice of carpet finish to the lounge, stairs and first floor.
Heating
- Gas central heating boiler.
- Underfloor heating to the ground floor.
- Traditional radiators to the first floor with thermostatic valves.
- Heated towel rails to the bathrooms and en-suites.
Electrical
- Intruder alarm system with control pad in the hall.
- White sockets and switches throughout with brushed chrome in the kitchen.
- Mains wired smoke alarm system with battery back up.
- Downlighters to kitchen and bathrooms.
- Electric Vehicle charging point.
- Each property will be fitted with solar panels and buyers will have the opportunity to purchase a battery power store as an optional extra.
Kitchen
- High quality kitchen from local manufacturer.
- Choice from a specially selected range.
- Solid quartz worksurfaces and upstands.
- Ceramic hob with extractor fan.
- Quooker boiling water tap.
- Integrated Neff oven and combination ovens.
- Integrated fridge freezer.
- Under unit lighting beneath the wall cupboards.
Bathrooms
- Quality modern bathrooms.
- Vanity units beneath the washbasins.
- Bath with shower over
- Walk in showers to en-suites.
- Choice of tiling. Half tiled walls and tiled floors.
- Shaver points.
Driveway and Garden
- Tarmac driveways with block edging.
- Turfed gardens to the front and rear.
- Stone paved paths to the front and side and paved rear patio.
- Stone wall surrounds to the front.
- Post and rail fencing to the rear gardens.
- Close boarded fences between the houses and gardens and between the houses along the drives.
- External electric socket.
- Outside water point to rear and inside garage.
Warranty
The property comes with the backing of a 10 year Build-Zone structural warranty as standard for complete piece of mind. The developers also comply with the “Consumer Code for New Homes.”
Please Note
The developers reserve the right to amend the specification during the build where necessary – these particulars are issued as a guide only. Tenure: Freehold.
Floorplan
For illustrative purposes only. Please note that furniture and wardrobes etc are not included within the sale.
Accommodation
GROUND FLOOR
Hall
Lounge 4.07m x 3.98m
WC 1.67m x 0.90m
Living / Dining / Kitchen 4.07m x 6.20m
FIRST FLOOR
Landing
Bedroom 1 3.34m x 4.02m
En-Suite 2.50m x 1.90m
Bedroom 2 2.79m x 3.34m
Bedroom 3 3.46m x 2.75m
Bathroom 1.95m x 2.27m
Viewing
By appointment with Wm Sykes & Son. We advise all viewers to the site to respect the safety barriers around the site and not enter without being accompanied by a representative of the developers.
Location
From the Holmfirth take the A635 Greenfield Road to the Ford Public House, then turn right onto Thick Hollins Road. Follow this road right down towards Meltham, round the twisting Coach Road and onto Holmfirth Road. The development will be found down the lane on the left hand side indicated by our For Sale Board.







































