Imposing spacious 4/5 bedroom courtyard property boasting impressive far reaching Holme Valley views to the rear. Ford Court is a highly regarded scheme and well located for surrounding countryside, with Holmfirth centre and several well-regarded schools nearby. With a good-sized rear almost flat garden, large paved areas, decking and lawns and incredible views. The accommodation briefly comprises: entrance hallway, lounge, playroom, large dining kitchen, utility, WC, study/bedroom 5, 4 double bedrooms, ensuite and house bathroom. With a double width drive and garage the property boasts under floor heating in the main on the ground floor and every room is sure to impress due to the sizes on offer. This family home is over 2,500 square feet and must be viewed to be fully appreciated.
Overview
Property Details
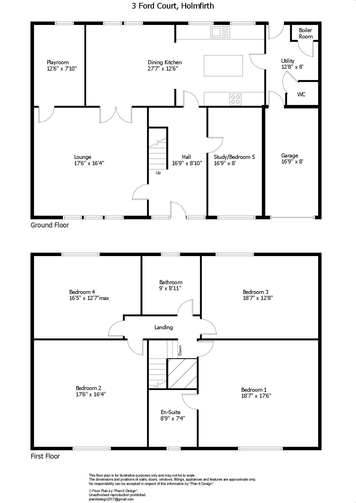
Accommodation
GROUND FLOOR
Entrance Hallway
An impressive first impression with a wide hallway with a part galleried landing above. The hallway has a tiled floor which runs through to the kitchen, there is exposed stonework and an exposed beam and to either side of the front door are double glazed windows.
All rooms on the ground floor with exception of the study/bedroom 5 has under floor heating.
Lounge 5.33m x 4.98m
To the front of the property is the lounge with an exposed timber mantle above a stone set raised hearth. There are double glazed mullion windows to the front aspect and double doors open to the dining kitchen as well as doors to the playroom and hallway.
Dining Kitchen 8.4m x 3.86m overall max
The room is partially split but is ultimately a large room at almost 28 feet long. The kitchen area has units to the high and low level, inset period style sink, central island, integral freezer, wine fridge, dishwasher and range style cooker. There are inset spotlights, tiled splashbacks and double-glazed mullion windows offering impressive views to the rear. The dining area can double up as a day room/family room and offers a great space with double-glazed mullion windows. From this area double doors open to the lounge.
Playroom 3.8m x 2.4m
A great addition to the living space with lots of options but currently used as a playroom. The room benefits from a double-glazed window offering far reaching views.
Study/Bedroom 5 5.1m x 2.44m
Located at the front of the property with double glazed mullion windows and a central heating radiator. The only ground floor living space that does not have under floor heating and we are informed by the current vendors that this was originally another garage. Now it offers a more formal dining room, office or bedroom 5.
Utility 3.86m x 2.44m max
The utility area includes a separate WC which has a basin, WC and tiled flooring. Also there is a cupboard which houses the property’s central heating boiler. In the utility there are units to the high and low level, sink unit, plumbing for an automatic washing machine, door to the garage and a timber external access stable style door with glazed panel.
FIRST FLOOR
Landing
Part galleried to the hallway below the landing is home to the loft access point. The large loft spans the full footprint of the house and is fully boarded, providing an excellent storage space.
Bedroom 1 5.66m x 5.33m
Like all the bedrooms this is a large room and the largest of them all. Located to the front of the property the room has double-glazed windows and 2 central heating radiators.
En-Suite 2.67m x 2.24m
Having a three-piece suite in white with a shower cubicle, vanity basin, heated towel radiator, tiled splashbacks and an obscure glazed circular window.
Bedroom 2 5.33m x 4.98m
Located to the front of the property with a double-glazed window giving a front aspect and views through the courtyard to farmland beyond and 2 central heating radiators.
Bedroom 3 5.66m x 3.86m
To the rear and boasting incredible far reaching Holme Valley views courtesy of the double-glazed window and 2 central heating radiators.
Bedroom 4 5m x 3.84m max
Again, to the rear and boasting incredible far reaching Holme Valley views courtesy of the double-glazed window and 2 central heating radiator.
House Bathroom 2.74m x 2.72m
The bathroom offers a 4 piece suite including shower cubicle, free standing bath, tiled splashback areas, heated towel radiator and two obscure double-glazed windows.
OUTSIDE
To the front the property sits to the rear of the courtyard and has a double width block set drive, paved path to the front door with a lawned area to the side and some established planting. There is a fitted EV point.
Garage 5.1m x 2.44m
With a single up and over electric door, power and lighting.
Rear Garden
Immediately to the rear of the property is a large paved area and a further slightly elevated enclosed paved area before the rear garden opens to a lawn. At the back of the lawn is a decked area. The garden offers lots of outside entertaining and children play space all whilst enjoying impressive Holme Valley views. There are fenced boundaries to two sides and at the rear boundary the garden area drops down to a drystone wall. There is an outside tap and external lighting.
Also, to the rear is a walled in area that houses the property’s oil tank that fuels the central heating.
There is a side personnel gate giving access to the front courtesy of a ginnel under the neighbour’s property.
Additional information
The property is Freehold. Energy rating 73 (Band C). Council tax band F.
Our online checks show that Ultrafast Full Broadband (Fibre to the Premises FTTP) is available and could be installed. Mobile phone coverage is available with some providers.
Viewing
By appointment with Wm Sykes and Son
Location
From Wm Sykes office in Holmfirth proceed along Huddersfield Road and turn up right onto Greenfield Road. Proceed up Greenfield Road for approximately ¾ mile passing the Ford Inn (now closed) and you will see Ford Court ahead on the right. Proceed along and turn into Ford Court. Number 3 is ahead.



































































