This deceptively spacious detached family sized home nicely tucked away at the end of the cul-de-sac. It was extended above the garage a few years ago adding a fourth bedroom with en suite facilities. The accommodation now briefly comprises kitchen, living room, dining room, ground floor w.c., 4 first floor bedrooms (1 with en suite shower room), and house bathroom. It benefits from gas fired central heating and double glazing. The property has ample off-road parking giving access to an almost 24ft long garage, sizeable paved area to the side, and a sizeable garden to the rear. It is only a short drive from Blackmoorfoot Reservoir and surrounding countryside, the well-regarded Bull’s Head pub & Restaurant, and within walking distance of shops and amenities along Manchester Road. The village of Slaithwaite is a short drive away where you will find lots more shops, bars, restaurants, and a train station.
Overview
Property Details
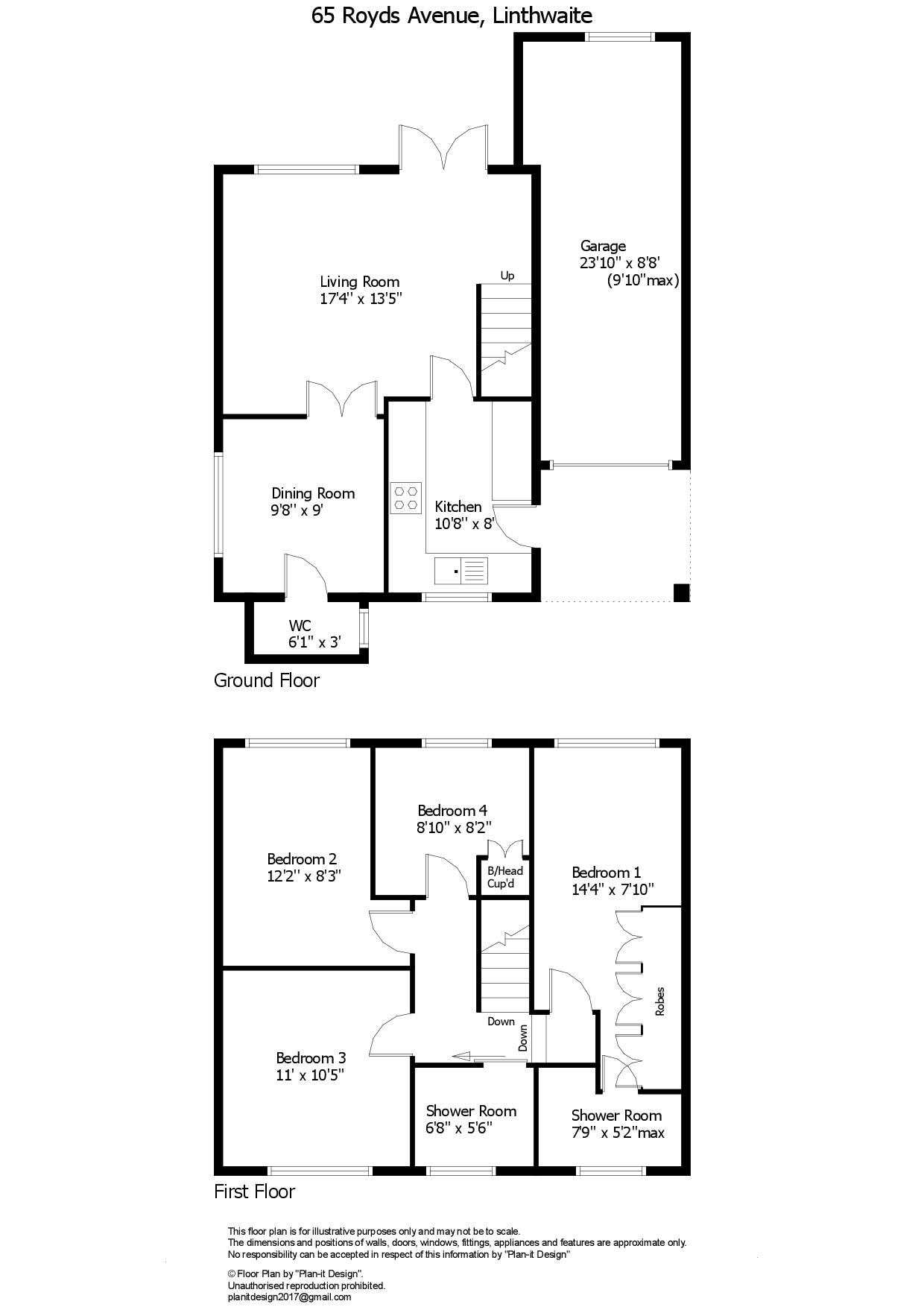
Accommodation
GROUND FLOOR
The front entrance door opens into:-
Kitchen 3.25m x 2.44m
Fitted with a range of wall, drawer and base units having work surfaces over incorporating a composite sink with mixer tap. There is a ceramic hob with extractor hood and glass splashback over, double oven, and space for other under counter appliances. The kitchen also has tiled splashbacks, wood effect flooring, inset ceiling spotlights, and window to the front.
Living Room 5.28m x 4.1m
With dado rail, window and French doors to the rear, staircase rising to the first floor, and double doors lead through to the dining room.
Dining Room 2.95m x 2.74m
Having window to the side, wood effect flooring, dado rail, and a serving hatch through to the kitchen.
Ground Floor W.C. 1.85m x 0.91m
Fitted with a white suite comprising low flush w.c. and wash basin set into a vanity unit. There is a frosted window to the front, and wood floor.
FIRST FLOOR
Landing
With loft access.
Bedroom 1 4.37m x 2.4m
A double bedroom with a bank of fitted wardrobes and window overlooking the rear garden.
En Suite Shower Room 2.36m x 1.57m
Fitted with a white suite comprising a low flush w.c., wash basin set into a vanity top with cupboard below, and shower cubicle. There are tiled walls, and frosted window to the front.
Bedroom 2 3.7m x 2.51m
A double bedroom with views to the rear.
Bedroom 3 3.35m x 3.18m
Another double bedroom with window to the front, and wood effect flooring.
Bedroom 4 2.7m x 2.5m
A good sized single bedroom with bulkhead cupboard and views to the rear.
Shower Room 2.03m x 1.68m
Fitted with a white suite comprising a low flush w.c., wash basin with cupboard beneath, and a large open ended shower cubicle with dual head shower over. There is a frosted window to the front, wood effect flooring, inset ceiling spotlights and wipe clean wall panels.
OUTSIDE
There is ample parking to the front of the house for several vehicles and access to a large garage which has a window to the rear, power sockets, lighting, and houses the central heating boiler. Down the other side of the property, you will find a sizeable paved area with access to a timber shed. This leads on round to the rear where you will find a paved patio immediately to the rear of the house with steps up to a lawned garden which extends across the back of the garage and is enclosed by timber fencing and shrubs.
Viewing
By appointment with Wm. Sykes & Son.
Location
From Manchester Road in Linthwaite, Royds Avenue can be found just opposite ‘The Royal Oak’ public house. No.65 will be found right at the end of the cul-de-sac.
Additional Information
- Council Tax – Band C (£2,055.25 2025/26)
- Tenure – Leasehold held on a 999 year lease from 11/11/1938 at an annual ground rent of £3.46p
- Energy Rating TBC
- Utilities:- 1. Water – mains 2. Drainage - mains 3. Gas – mains 4. Heating – gas fired central heating 5. Electricity – mains 6. Broadband & Mobile Phone – The ‘Ofcom’ on-line checker shows a range of broadband services, including ‘Ultrafast’, are available in this area and mobile coverage at the property is offered by several providers.



















































