Accessed via lift or staircase from the communal entrance hall, a corridor then leads on to this 1 bedroomed duplex apartment which is located on the first floor of this iconic Grade II Listed waterside mill conversion. It offers comfortable living for a single person or couple who are looking for for a luxury secure apartment. The accommodation is laid out over two levels and briefly comprises entrance hall, a large open plan living, dining and kitchen. A staircase takes you up to the mezzanine level where you will find a spacious wet room, and double bedroom which is galleried over the living area below. It enjoys a wooded aspect courtesy of the huge window that provides natural light to both levels. This apartment comes with an allocated parking space. It has a new washing machine and waste disposer, new kitchen unit doors with new solid wood worktops and a new radiator in the lounge to heat the area properly. The wet room is also newly fitted.Titanic Mill occupies a pleasant setting with countryside on the doorstep and the popular village of Slaithwaite with its varied amenities, shops, restaurants, and railway station, is only a short drive away or perhaps take the canal towpath if you fancy a pleasant walk.
Overview
Property Details
Accommodation
Once inside the building, take the lift or stairs up to the first floor and the secured internal corridor will lead on to the apartment. Your own entrance door then opens into:-
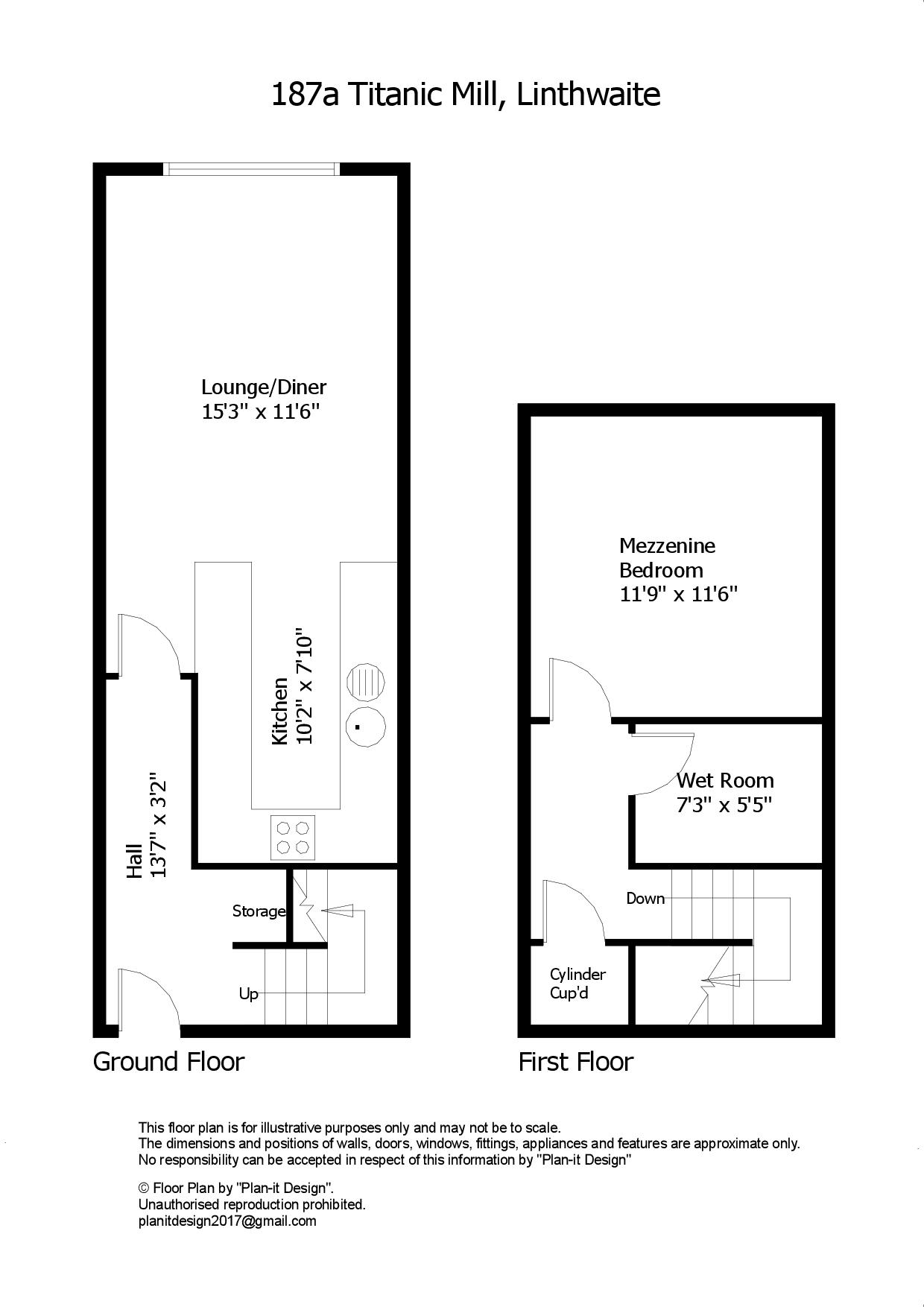
Hall 4.14m x 0.97m
With wall mounted intercom handset, wood effect flooring, access to an under stairs storage area, and staircase rising to the mezzanine level above.
Open Plan Living, Dining & Kitchen 7.75m x 3.5m overall
A great living space with a light and airy feel having a large window that provides natural light to both levels. The kitchen area is fitted with a range of modern high gloss fronted wall, drawer and base units having solid wood worktops over which incorporate a stainless steel circular sink with mixer tap and a matching drainer. Integrated appliances include a fridge, freezer, washing machine, slimline dishwasher, 4-ring electric hob with extractor hood and stainless steel splashback over and an oven beneath.
Mezzanine Level
A landing area has access to a cylinder/store cupboard.
Wet Room 2.2m x 1.65m
Fitted with a white suite comprising a low flush w.c., wall mounted wash basin with recess above which has a mirror, light and shaver socket, and a spacious showering area with screen and dual head shower. There are mainly tiled walls, tiled wet room floor, and sensor operated spotlighting.
Galleried Bedroom 3.58m x 3.5m
The large full height window provides woodland views and natural light to this and the lower level accommodation.
Viewing
By appointment with Wm. Sykes & Son.
Directions
From Huddersfield town centre ring road, take the A62 in the direction of Oldham for approximately 4 miles. Arriving in Linthwaite you will approach a set of traffic lights, take a sharp turn right at the traffic lights onto Bargate and go to the bottom of the hill where you will arrive at the entrance to Titanic Mill on the right hand side. The entrance door is the one to the right of the spa.
Additional Information
- Council Tax – Band A
- Energy Rating – 80 (Band C)
- Tenure – Leasehold on the remainder of a 999-year lease from 2004.
- Service Charge – The annual service charge is currently £1800 which covers the cost of ongoing management and maintenance of the building, lifts, cleaning and lighting of communal areas, window cleaning, and building insurance.
- Utilities:- o Water – bore hole o Drainage – mains o Water and heating are provided by a central system with each apartment having its own meter. The tariff is set by Titanic Mill Energy Services Ltd. o Broadband & Mobile Phone – The ‘Ofcom’ on-line checker shows a range of broadband services, including ‘Ultrafast’, are available in this area and mobile coverage at the property is offered by several providers.































